収納充実共働き世帯に配慮ペットと暮らすランドリールーム

大空間を活かし、家族のこだわりを描くSE構法の家

  • 耐震・免震・制震
  • 高気密・高断熱
  • 省エネ・創エネ・エコ(eco)
  • 通風・採光

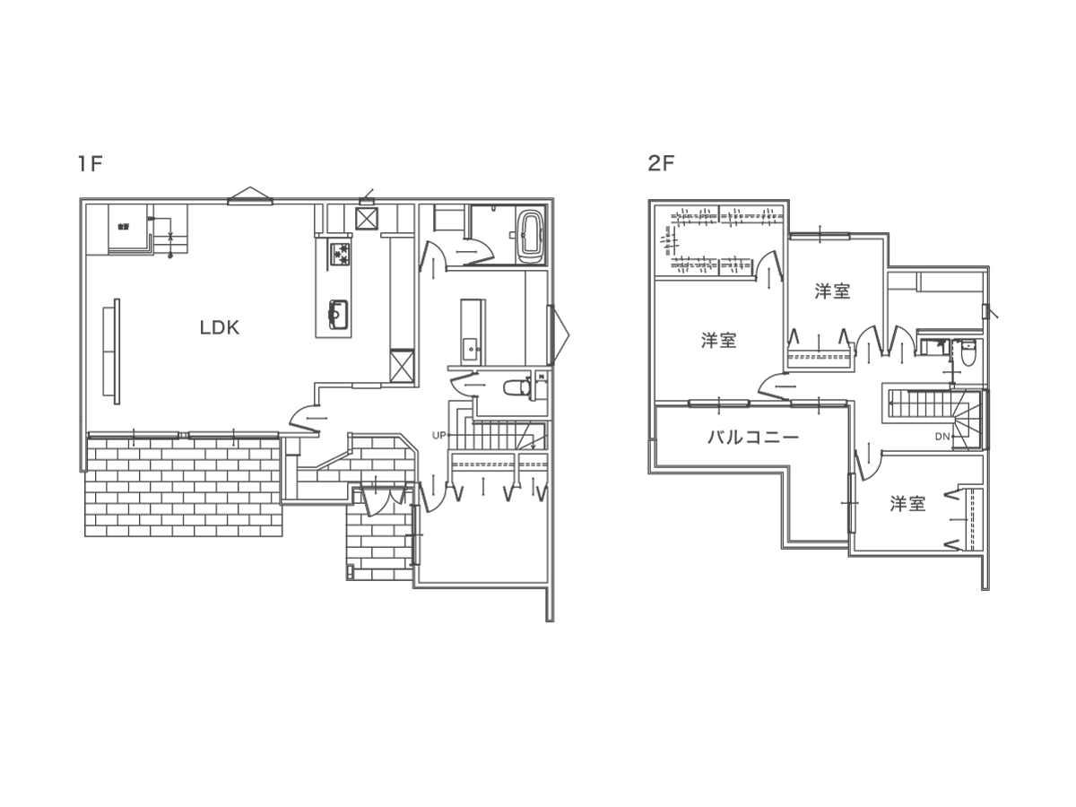
家族の時間を育む開放的なLDK。バルコニーは暮らしを楽しむ、もうひとつの場所に

延床面積
158.98m2 (48.0坪)
敷地面積
499.03m2 (150.9坪)
竣工年月
2025年7月
工法
木造軸組

「せっかく建てるなら、自分たちの思いを詰め込みたかった」とLさんご夫妻。
お二人の理想は暮らしの中心に大きなリビングを据えること。
SNSを参考にしながら自分でも間取りを描き、少しずつイメージを膨らませたそう。そんな想いにジャパンホームが提案したのが、耐震性と開放感を実現できるSE構法。
「最初は住宅性能を重視すると予算が膨らむのではと不安でした。でも、プラン一つひとつに工夫を重ね、希望の予算に収めてくる。性能とコストの両立に向き合う姿勢が心強かったですね」。
将来の暮らし方の変化にも柔軟に対応できる点も決め手に。
「天井が高く、一体感のあるリビングはとても気持ちがいい!同じ空間にいながら、程よい距離感が保てます」。大空間を生かす工夫も随所にある。
例えば、リビングの一角にスキップ空間を設け、上部をワークスペース、その下には愛犬のためのスペースを設置。
さらに、テレビ背面の造作収納やキッチン隣のパントリーなど、必要な場所に必要な収納を計画。モノがすっきり片付き、空間の広さをそのままキープできる。
「朝はやわらかな光に包まれ、夜は落ち着いた照明でリラックスできます。
休日も家で過ごす時間が増えたのが、いちばんの変化ですね」とLさんご夫婦。広い庭を走る愛犬を眺める何気ない時間が、何よりの喜びだという。